ZJS-41跳閘回路監視繼電器技術數據及開孔尺寸-上海上繼科技有限公司
發表時間:2019-08-14 14:17 瀏覽次數:961 〖返回〗
一、ZJS-41跳閘回路監視繼電器工作條件
a)使用地點不允許有爆炸危險的介質,周圍介質中不含有腐蝕金屬和破壞絕緣的氣體及導電介質,不允許充滿水蒸汽和有較嚴重的霉菌存在;
b)使用地點不允許有較強的振動和沖擊;
c)使用地點應具有防御雨、雪、風沙的設施;
d)使用地點不允許超過1.5mT的外磁感應強度。
電氣抗干擾:繼電器應符合GB7261和GB6261 ?靜態繼電器及保護裝置的電氣抗干擾試驗 。
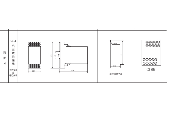
二、ZJS-41跳閘回路監視繼電器外形開孔尺寸

三、ZJS-41跳閘回路監視繼電器技術數據
1、額定電壓:220V、110VDC。
2、觸點形式與容量:具有二付轉換觸點和一付動斷觸點;觸點斷開容量為 DC220V, 0.1A(pf=0.4、 L/R=5ms);AC220V, 3A。
延時時間:≥0.3s。

四、ZJS-41跳閘回路監視繼電器工作原理
ZJS-41跳閘回路監視繼電器由一個電磁型輔助繼電器和一個提供返回延時的RC回路組成。在繼電器線圈回路中串接一個發光二極管,當跳閘回路完好時則發光二極管亮(輔助繼電器在動作狀態)。
當斷路器處在“合閘”狀態(參閱圖1),有電流通過發光二極管、輔助繼電器線圈、斷路器輔助觸點,流到跳閘線圈,一旦這個回路開路或直流電源消失,輔助繼電器經一段延時后返回,并通過它的觸點給出報警信號。
若保護繼電器動作跳閘 ,它的跳閘接點將ZJS繼電器短接,經過一定時間(斷路器跳閘時間)后斷路器斷開。它的輔助接點亦就轉換,保護繼電器跳閘接點也返回而斷開,本繼電器通過斷路器另一輔助觸點恢復供電。
該繼電器中的輔助繼電器在下列時間內處于動作狀態
( 1 )保護繼電器跳閘觸點閉合到斷路器跳閘。
( 2 )斷路器輔助觸點率專換到保護繼電器觸點斷開 。
這是通過 RC電路實現的,使輔助繼電器延時后返回,假使斷路器失靈則保護繼電器跳閘觸點保持閉合的時間長于繼電器延時時間,因而ZJS將給出報警信號。

五、ZJS-41跳閘回路監視繼電器用途
ZJS-41跳閘回路監視繼電器可連續監視斷路器中的直流電源及整個跳閘回路。當直流電源消失、跳閘線圈及引線發生故障,繼電器經0. 3秒延時返回并通過它的觸點發出報警信號。
1、直流電源消失監視。
2、跳閘線圈及引線發生故障監視。
3、斷路器輔助接點的故障監視。
上海上繼科技有限公司(專注中間繼電器生產廠家)銷售熱線:021-57233089 QQ:1932551438
(以上內容僅供參考,上海上繼科技有限公司有最終解釋權}
更多繼電器精彩文章→JZ-S/426靜態可調延時中間繼電器型號含義及開孔尺寸





